Skip to content

AkroDYNE®轮胎动平衡机

Dynamic Balance - AkroDYNE
  • 概述 +


     

     

    AkroDYNE®轮胎动平衡系统的目的旨在确保轮胎的质量。  它根据静态、力偶和上下平面的不平衡量来测量、分级、打标和分类轮胎。  所有Micro-Poise动平衡机都是利用一个“负载测量”不平衡感应系统与基于软件的计算机合作完成工作。  这个系统有几个先进之处。  负载测量系统可以准确测量多种轮胎的不平衡。  电器元器件非常稳定并且允许为所有轮胎校准设备  当轮胎膨胀或旋转时会对轮胎进行测量

  • 测量包括: +


    轮胎静态不平衡会产生干扰,如轮胎反弹  胎面上的重点/轻点均可引起静态不平衡。  这种情况在每次轮胎转动时会引发车辆内部的上下负载。  当车辆加速时这些负载将被放大。

    车轮内的力偶不平衡可以产生干扰比如轮胎摆动。  当轮胎安装不当或胎侧出现一个重点/轻点,都会引起力偶不平衡。  偶不平衡在每次车轮转动时将会引起一侧到另一侧的震动或者车辆内车轮的摆振  当车辆加速时这些负载将被放大。

    上下平面的不平衡是纠正如前所述的车轮的静态和力偶不平衡所需的重量。

    为保证最佳的驾乘质量和客户满意度,轮胎和汽车生产商设定了可以接受的静态、力偶和每个平面不平衡负载的限值。  AkroDYNE® 的轮胎动平衡系统通过提供对轮胎的测量,分级,打标和分类来实现这些要求。

    AkroDYNE®在在检测具有不同胎圈直径(取决于适配器)、外径、断面宽度和重量的轮胎时,可根据不同轮胎宽度和测试条件自动调节。  这些特征使 AkroDYNE® 轮胎动平衡系统成为了一个效率极高的检测设备。

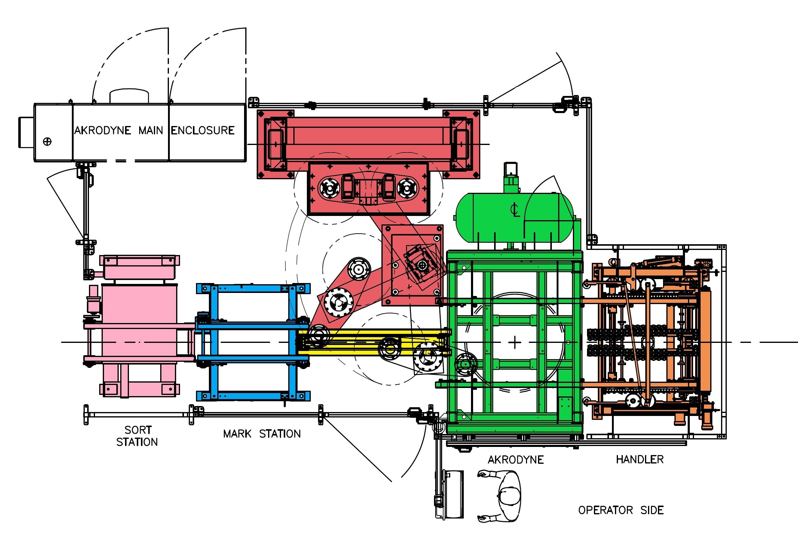
  • AkroDYNE®动平衡系统布局图: +


  • AkroDYNE®动平衡系统的选配包括: +


    AkroDYNE®动态平衡系统被设计为设备主要部件的最大接入,同时也保证了现场操作者和维护者的安全。  轮胎出口下沉式传送带可将轮胎顺利导入测试工位和打标工位  设备安全栅栏设有安全互锁装置,门锁打开时设备停止。这样可以很容易的访问整台机器这样可以很容易的访问整台机器

  • 产品手册 +